Rif: FIVIZZANO
FIVIZZANO
MASSA CARRARA
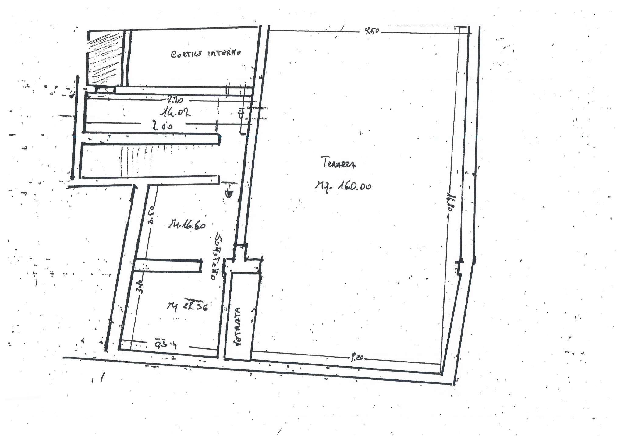
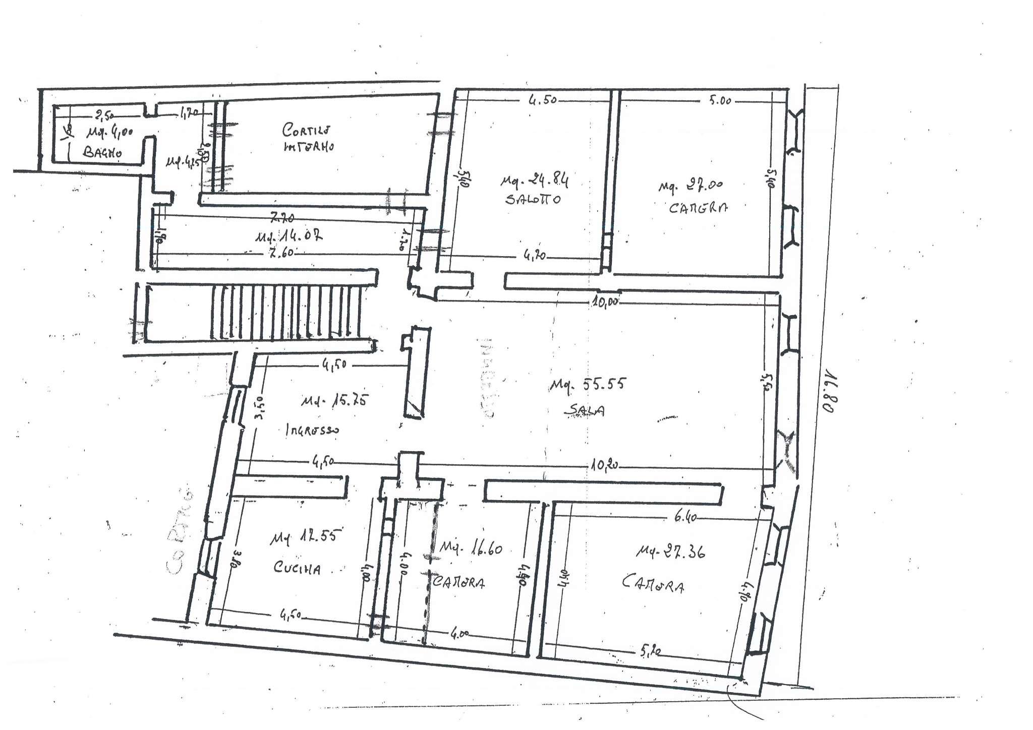
Rif: FIVIZZANO - APPARTAMENTO DIVISIBILE CON TERRAZZO IN VENDITA FIVIZZANO PIAZZA VITTORIO EMANUELE In palazzo storico del 600 sulla Piazza Principale di Fivizzano proponiamo in vendita appartamento di mq 240 divisibili, con grande terrazzo sovrastante direttamente collegato all'appartamento tramite scala interna. L'immobile è posto al secondo piano e gode di una luminosa esposizione panoramica a sud. Internamente si presenta nelle condizioni originarie con affreschi stile liberty e camini in diversi ambienti tipici dell'epoca a cui risale. Completano la proprietà un sottotetto con loggiato e ampie cantine a volta.
Per ulteriori informazioni e appuntamenti: IMMOBILI & GESTIONI Srl - Telefono 010.56.48.06 - www.immobiliegestioni.it
Per ulteriori informazioni e appuntamenti: IMMOBILI & GESTIONI Srl - Telefono 010.56.48.06 - www.immobiliegestioni.it
